Skip to main content Skip to page footer

3D-GEBÄUDEVERMESSUNG

Standards

Fehlen Ihnen für Ihr Bauvorhaben genaue und aktuelle Pläne, oder bevorzugen Sie ein 3D-Modell?
 

Das Laserscanning-Messverfahren eignet sich ideal für präzise Aufnahmen in altem, nicht winkligen Bestand.

Mit dieser exakten und wirtschaftlichen Messmethode können wir Ihr Objekt innert kürzester Zeit korrekt, komplett und detailgetreu vermessen, das Terrain gleich inklusive!

Das Laserscanningverfahren ist gegenüber neuen, fotografischen Verfahren immer noch die verlässlichste und genauste Messmethode!

Auf Wunsch können die Aufnahmen im Landeskoordinatensystem LV95LN02 oder nur in Bezug zu einem +/-0.00 Punkt abgegeben werden.

Je nach Bedarf, liefern wir Ihnen auch die zusammengesetzte Punktewolke in passendem Format.

Lassen Sie das Objekt gleich durch uns in 2D oder als 3D-Modell in den LOD-Standards estellen.

Für 2D-Auswertungen verwenden wir 
3 Zeichnungsstandards:

1) 2D-Einfach (1:100) 

2) 2D-Mittel (1:50) 

3) 2D-Hoch (Denkmalschutz) 

Für 3D-Modelle verwenden wir 4 LOD-Standards:

1) 3D-LOD 100 (Kubus) 

2) 3D-LOD 200 (Objektstruktur ohne Detail) 

3) 3D-LOD 300 (Objektstruktur mit Detail) 

4) Detailierung nach Wunsch

 

 

Punktewolke

Für Studien und kleinere Baueingaben unser INSIDER-TIPP:

Lassen Sie ihren Grundriss, Fassade oder Schnitt nur als masstäblichen Punktwolkenschnitt darstellen und digitalisieren Sie Ihre Pläne nach Ihren Anforderungen selbst. 
Dies ist am schnellsten, einfachsten und kostengünstigsten!

Bei einer Konkretisierung Ihres Bauvorhabens können Sie zu einem späteren Zeitpunkt auch nur Teilbereiche vektorisieren lassen!

Grundriss-Punktwolkenschnitt

 

 

 

 

 

Schnitt-Punktwolkenschnitt

 

 

 

 

 

 

Fassade-Punktwolkenschnitt

Wir liefern die Punktewolke, sie den Rest!

Sie können das genaustens vermessene Objekt auch selbst auswerten und modellieren indem Sie die registrierte Punktewolken in Ihr entsprechendes CAD-System laden.

Fassaden

Ist Ihre Fassade sanierungsbedürftig, erhaltenswert oder gar historisch schützenswert?

Für denkmalgeschützte oder erhaltenswerte Objekte eignet sich das Laserscanningverfahren bestens.
Fassaden lassen sich damit in 2D beliebig detailgetreu nachbilden.

2D-Auswertung

Wünschen Sie aufgrund geringerer Kosten im Vergleich zu einem 3D Modell eine 2D-Auswertung?

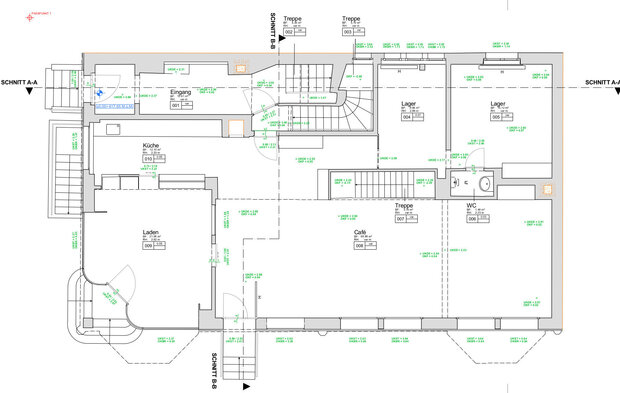
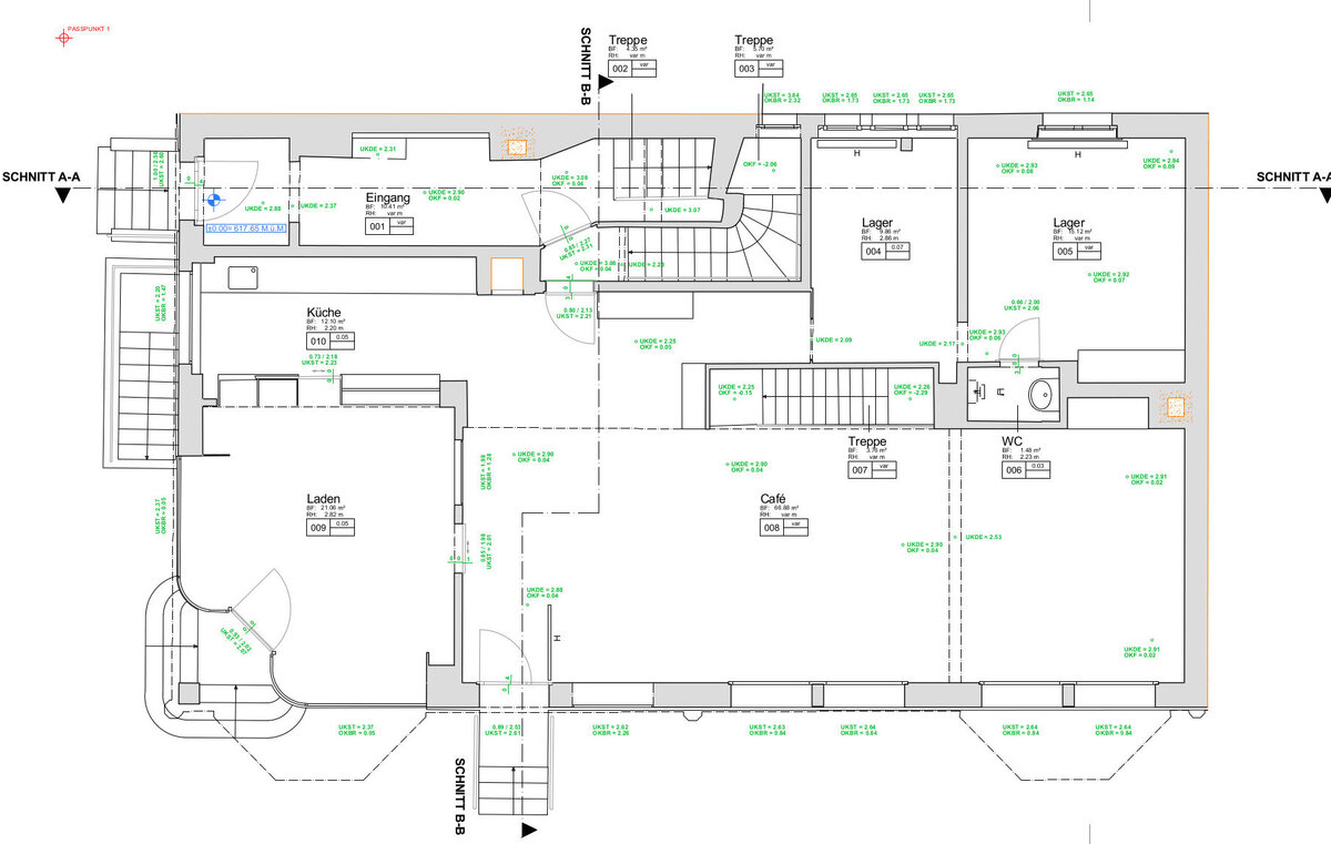
Wir liefern Ihnen nach Ihren Bedürfnissen die entsprechenden Pläne in 2D gem. SIA 118 / 400 / 416
Sie wählen dabei zwischen den Masstäben 1:100 oder 1:50 mit den Standards Einfach oder Mittel.
Eine sinnvolle Variante für die Baueingabe ist die Ergänzung eines einfachen 3D-Modells mit detailierteren 2D-Fassaden.

Fehlen Ihnen aktuelle Grundrisse um Ihre Ideen auf Papier zu bringen?

Wir vektorisieren die aktuellen Grundrisse in 2D-CAD Zeichnungen im Mstb.1:50 oder 1:100.
Es besteht auch eine Möglichkeit die Grundrisse aus dem 3D-Modell zu generieren und entsprechend aufzubereiten.

 

OFFERTE 2D-AUSWERTUNG ANFORDERN

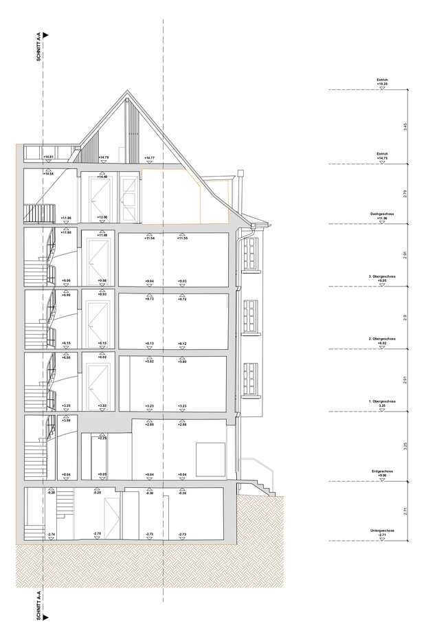
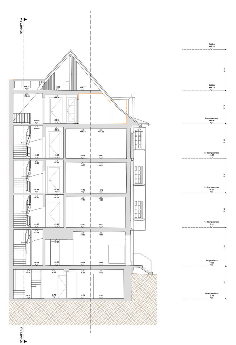
Benötigen Sie Schnitte um die verschiedenen Bodenniveaus zu erruieren?

Wir digitalisieren Ihre 2D-Schnitte an gewünschter Stelle in der Punktewolke.

3D-Modell

Setzen Sie auch auf 3D?

Der substanzielle Wert einer qualitativ hochwertigen Gebäudeaufnahme wird von Planern und Bauherren häufig unterschätzt. Alte, ungenaue Plangrundlagen die für Studien und Entwürfe dienen, werden vielmals weiter benutzt, was in der Ausführungsphase zu Fehlplanungen und hohen Kosten führen kann. Die Aufwendungen für eine exakte Basis stehen meist in keinem Verhältnis zu den Mehrkosten.

Formate

Was benötigen Sie für ein Abgabeformat?

Wir bedienen Sie mit folgenden Formaten:

  • In 2D mit DWG/DXF/PDF.
  • In 3D programmspezifisch für REVIT / Archicad / Vektorworks & AutoCAD.
  • IFC
  • Punktewolken als E57 / FLS / XYZ / RCP...